Prodej RD 90 m², pozemek 332 m² Tocháčkova, Šitbořice
B – velmi úsporná8 495 000 KčVčetně provize RK
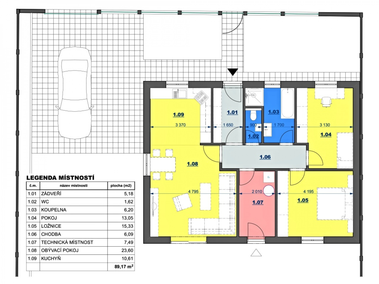
Se souhlasem majitele výhradně nabízíme prodej novostavby domu v obci Šitbořice o dispozici 3+kk. Jedná se o novostavbu jednopodlažního domu typu bungalov s užitnou plochou 90 m2, která je ve fázi před dokončením. Konstrukční řešení domu: železobetonová základová deska, nosná konstrukce z pórobetonových tvárnic YTONG Lambda YQ o tloušťce 375 mm se zateplením polystyrenem, vnitřní příčky z pórobetonových tvárnic YTONG 125 mm, stropní konstrukce z dřevěného krovu zatepleným kvalitní tepelnou izolací, pálená střešní krytina. Ohřev TUV a vytápění domu je zajištěno podlahovým topením s elektrokotlem a elektrickým bojlerem, okna plastová s trojsklem a venkovními žaluziemi. V uvedené kupní ceně je kompletní vybavení domu (interiérové dveře, podlahy, obklady, dlažba, zařizovací předměty koupelen a WC, kuchyňská linka, klimatizace). Dále jsou v kupní ceně domu zahrnuty zpevněné plochy a oplocení. Termín předpokládaného dokončení domu je leden 2026. IS-vodovod, kanalizace, elektrická energie jsou do domu připojeny. Dále se na pozemku nachází nádrž na dešťovou vodu o kapacitě 6 kubíků. Parkování je zde na vlastním pozemku. UP domu 90 m2, CP pozemku 332 m2. Obec Šitbořice se nachází v okrese Břeclav a náleží pod Jihomoravský kraj. Příslušnou obcí s rozšířenou působností je město Hustopeče. Obec Šitbořice se rozkládá asi 25 kilometrů jihovýchodně od Brna. Na území této obce žije trvale zhruba 2100 obyvatel. Obec Šitbořice má velmi dobrou občanskou vybavenost jako je lékařské středisko, několik obchodů, lékárna, pošta atd. Je zde také velmi dobrá dostupnost na dálnici D2. Obec Šitbořice je začleněna do IDS JMK.
Cena nemovitosti
| Provize: | Včetně provize RK |
Lokalita nemovitosti
| Ulice: | Tocháčkova |
| Město: | Šitbořice |
| PSČ: | 691 76 |
| Stát: | Česká Republika |
Stavba
| Typ objektu: | Samostatný |
| Budova: | Cihlová |
| Stav: | Novostavba |
| Zástavba: | Bydlení |
| Vlastnictví: | Osobní |
| Typ domu: | Přízemní |
| Umístění: | Klidná část obce |
Energetická náročnost
| Třída energetické náročnosti budovy: | B – velmi úsporná |
| Podle vyhlášky: | c. 264/2020 Sb. |
Podlaží
| Počet: | 1 |
Plocha
| Užitná: | 90 m2 |
| Pozemku: | 332 m2 |
| Zastavěná: | 108 m2 |
| Zahrady: | 224 m2 |
| Celková: | 332 m2 |
| Parkování: | Ano |
Rok
| Výstavby: | 2025 |
| Kolaudace: | 2025 |
Vybavení nemovitosti
| Zdroj vody: | Vodovod, Retenční nádrž na dešťovou vodu |
| Zdroj teplé vody: | Bojler - elektro |
| Topné těleso: | Podlahové vytápění |
| Zdroj topení: | Elektrokotel |
| Typ odpadu: | Veřejná kanalizace |
| Příjezdová komunikace: | Asfaltová |
| Telekomunikace: | Telefon, Internet, Satelit, Kabelová televize, Kabelové rozvody, Ostatní |
| Elektřina: | 230V |
| Doprava: | Silnice, MHD, Autobus |










